Cross Clamp

Image of Cross Clamp Image of Draw-Cross Clamp

This stanchion is used to create two axes that are perpendicular to each other. Screws are included and is a durable option.

SELECT PRODUCT VARIATION BELOW TO ADD TO RFQ

Product Variations

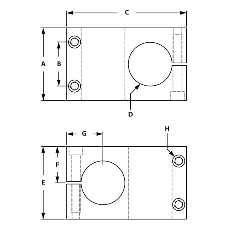
Item # Series Included Hardware #1 Included Hardware # 1 Qty A B C D E F G List Price Qty. Add to RFQ
659031

15
651031
4
2.000"
1.400"
3.125"
1.004"
2.000"
1.000"
1.000"
87.291
659033

15
651494
4
2.500"
1.750"
4.125"
1.505"
2.500"
1.250"
1.250"
95.706
659035

15
651654
4
3.500"
2.000"
5.500"
2.005"
3.500"
1.625"
1.750"
165.460